☆ペット飼育可能新築D-room☆環境に配慮したZEH-M仕様で発電した電気を自家消費可能!インターネット無料でさらに経済的♪オートロック・TVモニターホン付きで安心のセキュリティ♪ウォークインクローゼット付きでたっぷり収納可能♪宅配ボックス付き♪広々バルコニーで開放的♪※更新後の賃料は107,000円となります。
-
1/10
2/10
3/10
4/10
5/10
6/10
7/10
8/10
9/10
10/10

物件番号:14-000003165-103
-
9.63万円
管理費6,000円
駐車場 有6,600円
-
敷 0万円
礼 9.63万円
-
保証金 -
敷引・償却 -
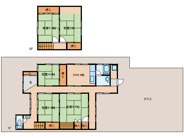
- 2LDK
57.78m2
西
- 賃貸/アパート
築-年
1階 / 3階建
- 奈良県奈良市恋の窪1
JR奈良線/奈良駅 徒歩19分
近鉄京都線/新大宮駅 徒歩19分
近鉄奈良線/近鉄奈良駅 徒歩32分